A. e F. volevano rinnovare la loro casa rendendola più funzionale ed accogliente: l’appartamento è stato totalmente ristrutturato e riarredato in stile moderno, puntando su linee essenziali abbinate ad un attento studio dei colori e dei materiali.
L’analisi e gli obbiettivi
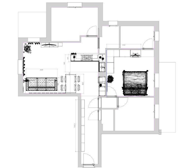
I punti “critici” su cui intervenire erano principalmente due: la cucina poco contenitiva (e quindi poco funzionale) e il lungo corridoio d’ingresso, che non aveva una sua identità.
Più in generale la casa aveva bisogno di un rinnovamento, sia a livello estetico che nella sostituzione di finiture ormai datate e usurate.

Progetto: la distribuzione degli spazi
L’intervento principale è stato effettuato nella zona living con la creazione di una quinta divisoria: una parete in muratura che non arriva fino a soffitto e che crea un angolo su cui disporre i mobili della cucina, rendendola molto più capiente e funzionale.

Il corridoio è stato organizzato con una libreria molto capiente in cui si alternano vani aperti per alloggiare i numerosi libri di A. e F. e vani chiusi per riporre oggetti vari.

Progetto: atmosfera e stile
A. e F. volevano per la loro casa un effetto ricercato, ma caldo e accogliente.
Gli arredi principali sono stati realizzati in bianco (libreria, basi e colonne cucina, parete TV, tavolo) con dettagli effetto legno. Per divano, sedie e top cucina invece sono state scelte diverse sfumature di grigio.



Il tutto è stato valorizzato dalle tinteggiature delle pareti: due nuance di verde danno un tocco sofisticato e contrastano piacevolmente con il grigio scuro utilizzato all’ingresso ed il bianco delle altre superfici.



Le idee da copiare

Una quinta divisoria è un’ottima soluzione per suddividere una stanza senza rimpicciolirla troppo a livello visivo: vedere al di sopra della quinta il muro retrostante permette di mantenere ampiezza visiva. Scegli due colori a contrasto per la quinta e il muro retrostante per enfatizzare l’effetto!

Per dare interesse e movimento ad una zona giorno non eccessivamente ampia, gioca con i colori: le due tinte neutre (il bianco e il grigio scuro) fanno risaltare il colore d’accento (verde) e sono completate dall’effetto caldo dato dal legno.
Movimenta i volumi con il cartongesso: il ribassamento all’ingresso e la “trave” collegata al pilastro creano un gioco interessante di forme e pieni/vuoti.
Contenitività è la parola d’ordine per la cucina di una famiglia: la nicchia tra pilastro e corridoio è totalmente sfruttata per dare massima capienza.

Amplifica lo spazio: quando la cucina si inserisce in una zona living dalle metrature contenute, opta per una soluzione con pochi pensili in modo da mantenere un effetto più possibile aperto e “leggero”.
Una cappa “scultorea”: un parallelepipedo bianco che assolve alla sua funzione senza connotare in modo troppo accentuato questo elettrodomestico, aiuta a creare una cucina elegante che dialoga bene con il resto dell’arredo e le altre funzioni ospitate nella stanza.

Sfrutta il potere delle mensole: posiziona qui gli oggetti di uso quotidiano (bilancia, barattoli di sale, zucchero e caffè) in modo che siano comodi e facilmente accessibili, scegliendo oggetti dal design curato e in linea con lo stile generale.
Non dimenticare anche qualche oggetto decorativo che ti permetta di rendere la cucina una stanza accogliente e di carattere.
Sostituisci di tanto in tanto le decorazioni per dare un’atmosfera e un appeal sempre nuovo alla tua cucina!

Come valorizzare un lungo corridoio:
– posiziona sul fondo un elemento che catturi l’attenzione;
– inserisci sul lato un arredo poco ingombrante che dia carattere allo spazio e accompagni lungo il percorso, come una bella libreria;
– fai “scomparire” le porte di servizio dei ripostigli realizzandole a filo muro e tinteggiandole come la parete;
– usa il colore per parete libera e soffitto per creare un effetto “scatola” mai banale;
– utilizza un’illuminazione studiata che preveda faretti verso il basso per la luce funzionale, e una gola di luce continua lungo la parete per la luce d’atmosfera.
Quale idea hai trovato più utile e interessante? Faccelo sapere nei commenti!
Se sei in cerca dell’atmosfera giusta da ricreare nei tuoi interni, scarica qui la nostra guida gratuita che ti aiuterà a definire il mood perfetto per te!
Lascia un commento