L’arredo è l’ultimo elemento che viene inserito in una casa a livello temporale, ma certamente è la prima cosa che si nota varcandone la soglia. Quindi qual è il momento giusto per iniziare a studiarlo? Distinguiamo varie casistiche:
Casa in acquisizione
Se stai cercando casa orientandoti su soluzioni già finite e pronte da abitare, il momento ottimale per pensare a come arredarle è proprio durante la scelta della casa stessa.
Quando si sceglie un immobile si tende ad osservarne posizione, numero di stanze, costo, stile, finiture…ma spesso non ci si ferma a pensare a come potrà essere una volta arredato. Sarà possibile realizzare la cucina con penisola che sogni? O avere un grande tavolo per i pranzi con gli amici? Si riusciranno a ricavare abbastanza spazi contenitivi?
Sono tutte valutazioni molto importanti da fare prima dell’acquisto per non doversi pentire a rogito effettuato.
Per supportarti nella tua scelta abbiamo pensato ad un servizio ad hoc e che già offriamo con dei nostri Partner: quando hai selezionato un paio di case adatte alle tue esigenze ma sei indeciso su quale confermare, ti accompagniamo nelle visite per valutare con te metrature, illuminazione e stile, e prepariamo per ognuna un progetto d’arredo mirato sulle tue esigenze ed i tuoi gusti (e non un render generico ed asettico!). In questo modo ti sarà molto più facile scegliere la casa giusta e avere un’idea chiara di come sfruttare gli spazi prima di procedere all’acquisto.
Cosa aspetti? Contattaci e saremo felici di assisterti nella scelta più importante per te e la tua famiglia: la vostra futura casa!

Casa da rinnovare
Se la tua casa è ben strutturata a livello di suddivisione tra le stanze e non richiede spostamenti di muri, porte e finestre, ma finiture ed impianti sono datati e hai in programma un bel restyling, il progetto dell’arredo deve andare di pari passo con lo studio degli elementi da rinnovare e deve essere sviluppato prima dell’inizio lavori.
Il rifacimento dei pavimenti, il cambio dei rivestimenti, l’adeguamento degli impianti idrico ed elettrico sono ottime occasioni per cambiare completamente lo stile di una casa, o anche solo di una stanza, per renderla all’altezza dei tuoi sogni!
Si tratta di interventi necessari per “svecchiare” una casa obsoleta, sia dal punto di vista estetico che tecnologico, e che al tempo stesso permettono di modificare la posizione degli arredi all’interno degli spazi in modo da renderli più funzionali e integrarli al meglio con l’illuminazione artificiale.
Spesso si tende a suddividere lavori edili ed arredo in due fasi distinte, come se fossero elementi separati. In realtà l’armonia di una stanza è data dal perfetto connubio tra la posizione dei mobili e come vengono illuminati, tra i loro colori e materiali e come questi si integrano a pavimenti, serramenti, rivestimenti e complementi. Gestirli come due cose distinte ed in tempi diversi ti porterà ad avere la chiara percezione che sono proprio due cose separate, sarà difficile avere un effetto armonico ed avvolgente, sia che tu cerchi un risultato dove tutto è perfettamente in tinta e coordinato, sia che cerchi un effetto basato su contrasti ed inserimento di elementi insoliti. In ogni caso l’effetto finale deve essere sempre accuratamente pianificato, ed è qui che entriamo in gioco noi PersonalDesigners!




Il nostro ruolo è quello di analizzare con te i punti di forza della casa che andranno valorizzati, e di individuare tutto ciò che invece può essere migliorato e reso più accattivante e funzionale.
Dialogando insieme e grazie a strumenti come la mood board ed i render tridimensionali, ti aiutiamo a fare emergere il tuo stile e a trasferirlo nella casa, mostrandoti come sarà a lavori finiti prima ancora che tu la inizi!
Non dovrai passare ore cercando di immaginare come potrebbe stare il pavimento posato…lo potrai vedere, e faremo insieme tutte le prove necessarie per valutare se è il colore corretto o sarebbe meglio averlo più chiaro o più scuro in funzione degli arredi che posizionerai in casa. E così per tutti gli innumerevoli elementi che dovrai scegliere per ogni ambiente: in questo modo le tue scelte saranno molto più semplici e rapide perché saprai esattamente quello che dovrà essere il risultato finale, e le maestranze che eseguiranno i lavori potranno procedere rapidamente.
Bello vero? Contattaci per renderlo realtà!
Casa da ristrutturare o di nuova costruzione
Quando si parla di interventi importanti come lo spostamento di pareti all’interno di una casa, la realizzazione di un ampliamento o addirittura la costruzione ex-novo, ci sono tantissimi elementi da prendere in considerazione per gestire al meglio i tempi del tuo progetto in modo da avere un risultato finale ottimale sotto ogni punto di vista.
In questo caso lo strumento più utile è quello del cronoprogramma: come dice la parola stessa un programma dettagliato di come gestire le fasi che ti portano dall’idea iniziale alla casa dei tuoi sogni.
DAL PROGETTO INIZIALE ALL’AVVIO DEI LAVORI
Quando si parla di ristrutturazione o costruzione, il momento migliore per iniziare a progettare i tuoi interni e l’arredo è quando hai un’idea definita di quello che sarà il perimetro dell’edificio, e un’idea di massima di quella che potrebbe essere la suddivisione interna. In questo modo avrai una sagoma ben definita, ma ancora la flessibilità per rivedere la posizione delle tramezze e di tutte le aperture prima che il progetto venga depositato in Comune e diventi ufficiale.
Questa fase è cruciale e spesso viene sottovalutata: intervenire in questo momento ti dà la certezza di poter realizzare tutti i tuoi desideri per gli interni, senza poi dover ripiegare su altre soluzioni perché quello che vuoi “non ci sta”!
E se non hai ancora idea di come vorrai gestire lo spazio interno, noi PersonalDesigners siamo qui apposta per dialogare con te ed aiutarti a far emergere i tuoi desideri, valutandone pro e contro. Contattaci ed imposteremo insieme un progetto da sogno!
Lo scopo di questa fase è quindi definire la posizione dei muri interni in funzione della disposizione degli arredi. Questo ti permette di verificare di avere spazio per tutti gli arredi, ed il giusto mix di spazio contenitivo e spazio libero per muoversi comodamente (leggi come creare uno spazio funzionale). Sulla base di questo progetto il tuo tecnico potrà depositare la pratica edilizia presso l’Ufficio Tecnico comunale e dare avvio ai lavori, partendo da quelli strutturali. Tu nel frattempo dovrai procedere con uno studio più approfondito degli arredi in vista della fase successiva.


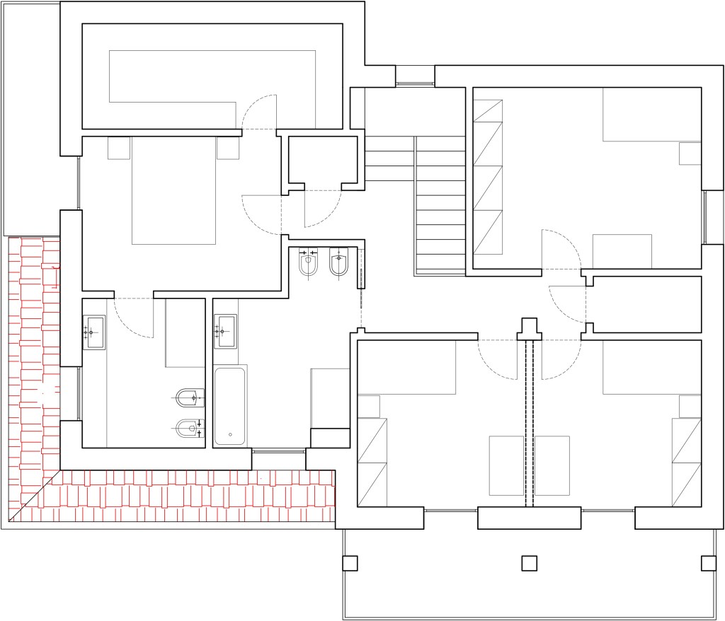
Sulla destra la rielaborazione che abbiamo studiato con i clienti per rendere la proposta iniziale più adatta alle loro esigenze. Le due camere dei gemelli sono poste sul fronte per dare ad entrambi accesso al balcone. La camera matrimoniale è stata spostata per avere anch’essa accesso al suo balcone e al tempo stesso godere di più privacy. La cabina armadio è stata ampliata e nel disimpegno sono stati ricavati due ripostigli molto funzionali per contenere prodotti e attrezzature per la pulizia e i tessili per la casa.
LA PROGETTAZIONE E REALIZZAZIONE DEGLI IMPIANTI
Ultimate le strutture ed i muri, inizia la fase della realizzazione degli impianti in cui il cantiere sembra rallentare perché le modifiche sono meno evidenti e “corrono” nei muri, nei pavimenti e nei soffitti appena realizzati. E’ una fase fondamentale e che determina tantissime delle scelte d’arredo, dovrai quindi avere le idee chiare su molti più aspetti di quelli che comunemente si pensa.
Ti faccio alcuni esempi: se hai deciso di realizzare una cucina con isola, in questa fase dovrai già sapere se sarà un semplice piano d’appoggio o se verrà dotata di piano cottura e lavello, perché in tal caso dovranno essere predisposti gli opportuni impianti; nel bagno dovrai già sapere se preferisci avere un lavello a ciotola appoggiato su un’asse e con sifone a vista, oppure un mobile capiente con lavello incassato, perché cambia l’altezza a cui fare realizzare gli impianti idraulici; in camera potresti volere dei comodini poggiati a terra o sospesi, ma questo detta l’altezza delle prese di corrente; per non parlare dell’illuminazione: magari sogni strip led per “disegnare” con la luce, o faretti tecnici abbinati ad un bel lampadario sopra al tavolo da pranzo…e se non ci pensi prima rischi di ritrovarti con il classico punto luce da plafoniera a centro stanza e nulla di più. Potrei fare altri mille esempi ma credo che tu abbia già capito come tanti aspetti che si pensa di poter scegliere all’ultimo momento, sono invece da definire con largo anticipo per non privarsi poi della possibilità di avere ciò che si sogna.
Noi PersonalDesigners ti assistiamo in questa fase così delicata e in funzione delle tue idee di arredo diamo tutte le indicazioni tecniche perché le maestranze realizzino correttamente gli impianti: tu scegli ciò che ti piace e noi ci occupiamo di tutto il resto. Una bella comodità, non credi? Contattaci e saremo felici di aiutarti!

LE FINITURE E LA FORNITURA DEGLI ARREDI
Questa è la fase certamente più divertente di tutto il percorso perché ti permette di concretizzare l’anima e lo stile della tua casa, ma è anche quella che normalmente genera più dubbi: ci sono tante cose che ti piacciono, ma staranno bene tra di loro, e soprattutto saranno adatte alla tua casa e al suo stile generale?
Come ti ho già raccontato nel paragrafo sulla “casa da rinnovare” noi PersonalDesigners abbiamo gli strumenti giusti per poter fugare ogni dubbio e permetterti di visualizzare il risultato finito prima di scegliere finiture e arredi, dandoti la certezza di ottenere il risultato che desideri.
Non male, vero? Contattaci per iniziare questo percorso insieme, l’obbiettivo finale è sempre e solo uno: quello di aiutarti a realizzare la casa dei tuoi sogni!

Se hai trovato utile questo articolo lasciaci un commento qui sotto e condividilo!
Lascia un commento